kino lumbardhi
Cinema
Lumbardhi in Prizren is one of the most important monuments with respect to the
cultural and historical identity of Kosovo. The cinema
was opened in 1951,
which laid the foundation for a fruitful cinema tradition. In 2016, instead of
being torn down, Cinema Lumbardhi starts a revitalization
process.
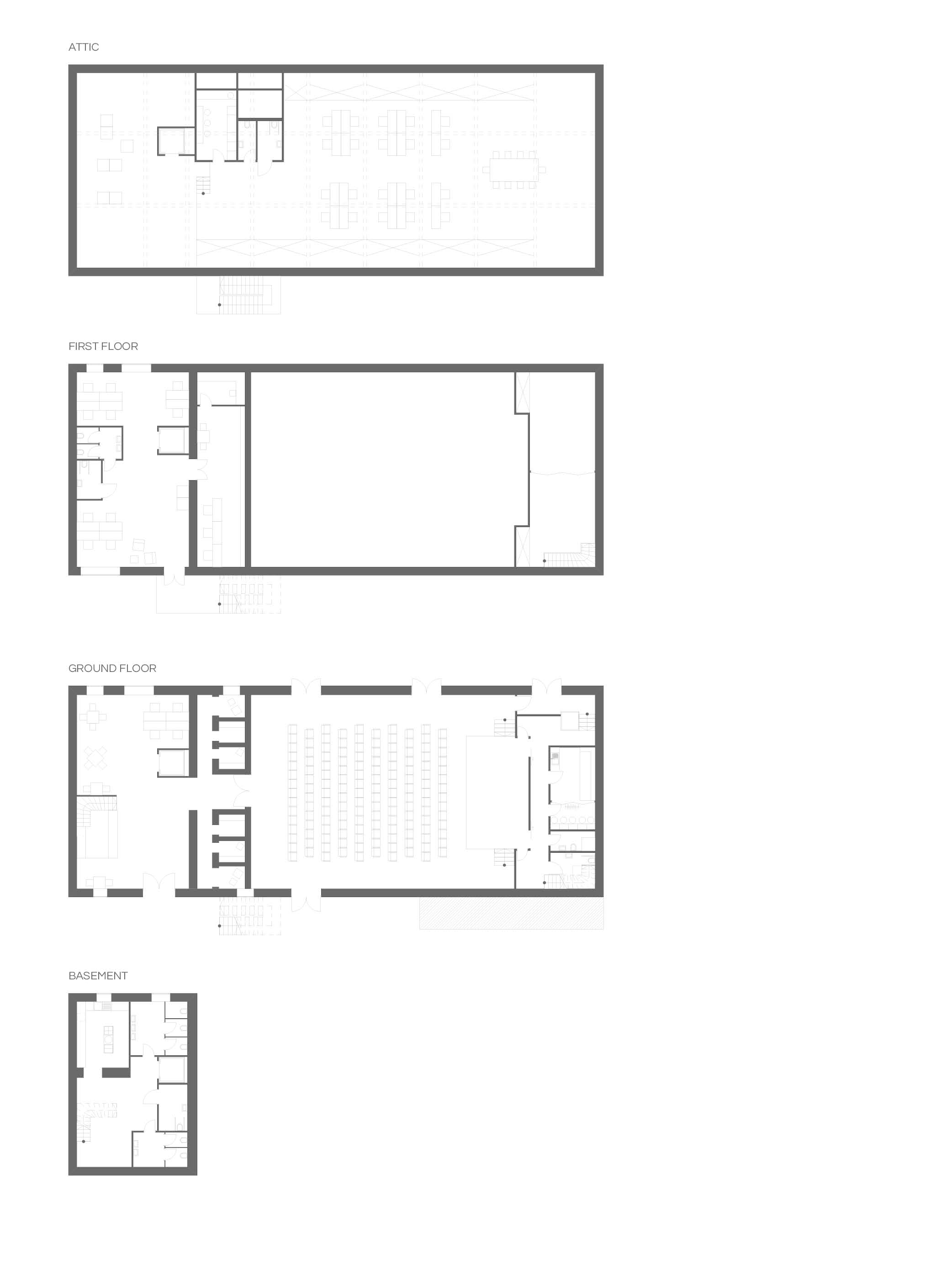
The research was done on the past and possible future of Cinema Lumbardhi as a new cultural institution. Iterations of architectural and urbanistic scenarios were prepared in order to include actors from different disciplines in the design process.
research work
with: Elmedine Morina and Mrina Godanca
commissioned by: Lumbardhi Foundation
The research was done on the past and possible future of Cinema Lumbardhi as a new cultural institution. Iterations of architectural and urbanistic scenarios were prepared in order to include actors from different disciplines in the design process.
research work
with: Elmedine Morina and Mrina Godanca
commissioned by: Lumbardhi Foundation




















architecture scenarios exploring different spatial possibilities of the cinema as a new cultural institution

textures as a distinctive feature of the cinema